Modern Farmhouse
3350 Sq.Ft
4 Beds
3 & 2 Powder Baths
2 Car Garage
2 Stories
About Home
Welcome to Cascade.
Designed to blend the best of traditional and contemporary styles, this home offers a perfect balance of elegance, comfort, and modern functionality. With thoughtfully planned layouts, open living spaces, and high-quality finishes, Cascade caters to today’s lifestyle while maintaining timeless appeal. Every detail has been crafted to create a home that feels both sophisticated and inviting—an ideal space for living, gathering, and making lasting memories.
Home Design Highlights
Cascade blends timeless elegance with modern functionality, creating a home that’s both stylish and comfortable. Featuring open-concept living spaces, a gourmet kitchen with modern appliances and ample storage, and bedrooms designed as serene private retreats, this home is perfect for everyday living and entertaining. Spa-inspired bathrooms, thoughtfully designed outdoor areas, and energy-efficient features complete a residence where every detail reflects exceptional craftsmanship and a harmonious balance of classic and contemporary design.
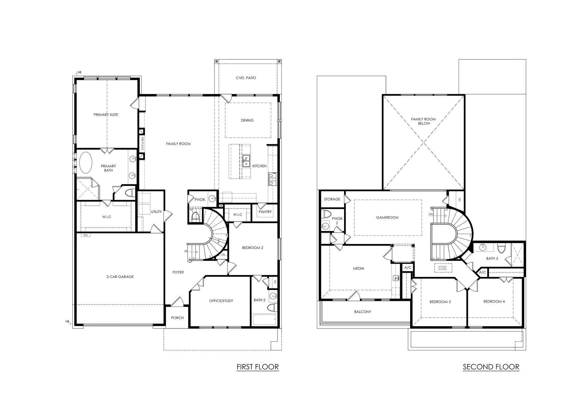
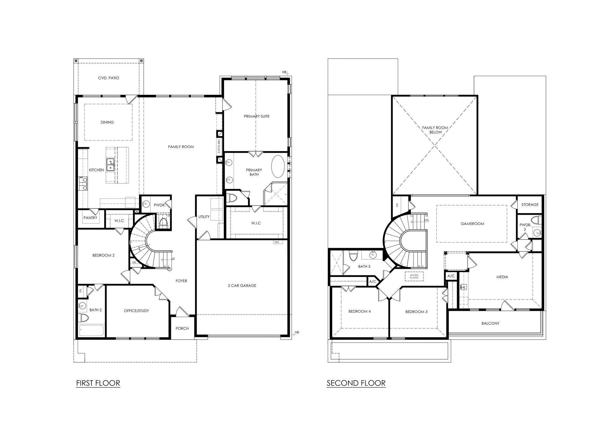
Floor Plans
Exterior Elevations
Contemporary Elevation
Sleek, minimalist with flat or low-sloped roofs, large glass areas, and asymmetrical forms. Clean lines and modern materials define the aesthetic.
Modern Elevation
Geometric massing, bold material contrast (stucco, metal, glass, and wood), expansive windows, and minimalist trim. Often features flat or shed roofs and horizontal lines for a cutting-edge appearance
Transitional Elevation
Harmonizes traditional form with modern features—neutral palettes, balanced proportions, and mixed exterior materials. Designed for broad market appeal.
Traditional Elevation
Timeless and elegant, featuring brick or stone facades, gable roofs, symmetrical window layouts, and classic architectural details.
Site Map
Easily explore the Cascade Transitional Series with our interactive site map. View every home in the community and check the status of each property. Quickly identify your preferred home and lot, visualize the neighborhood layout, and plan your next steps toward making a Sixth Element Home your own.

Affordability
At Cascade – each home is designed with affordability in mind. With clear pricing, flexible financing options, and a range of floor plans to suit different budgets, it’s easy to find a home that fits your lifestyle and long-term goals.
Lot Availability
Select from a range of thoughtfully designed lots that complement the Transitional-style homes. Whether you prefer a spacious backyard, a quiet corner, or a premium location within the community, our site map helps you easily identify the perfect lot for your future home.
Resident Benefits
Living at Cascade means more than owning a home—it’s a lifestyle. Residents enjoy well-maintained community spaces, scenic outdoor areas, and a welcoming neighborhood atmosphere. Every home is crafted with attention to detail, modern amenities, and energy-efficient features to ensure comfort, convenience, and long-term value.
Contact details
Contact Information

Sandi Tijerina
sandi.tijerina@cbrealty.com
214-566-4809
