Modern Farmhouse
2800 Sq.Ft
4 Beds
3 Baths
2 Car Garage
1 Stories
About Home
Experience modern living at its finest with Valencia.
Crafted with a perfect balance of comfort, style, and functionality, this home showcases open, light-filled spaces that inspire connection while offering the privacy and tranquility every family deserves. The design highlights thoughtful details and premium finishes throughout, blending sophistication with everyday practicality.
Home Design Highlights
Valencia blends timeless farmhouse charm with modern living. Its design features open-concept living spaces that make everyday life and entertaining effortless. The gourmet kitchen is equipped with high-end appliances, ample storage, and elegant finishes, while the bedrooms serve as private retreats filled with natural light. Spa-inspired bathrooms, thoughtfully designed outdoor spaces, and energy-efficient features complete a home where every detail reflects quality craftsmanship and modern sophistication.
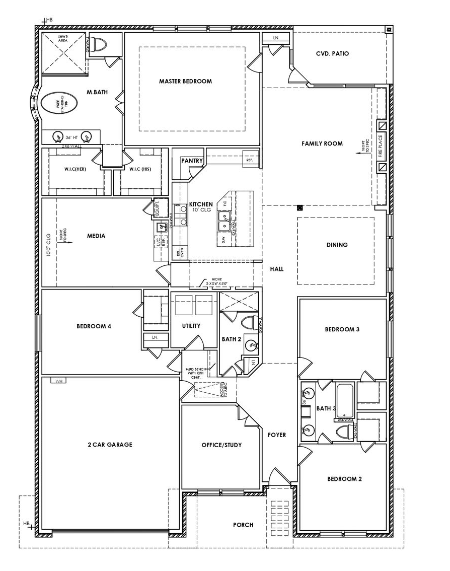
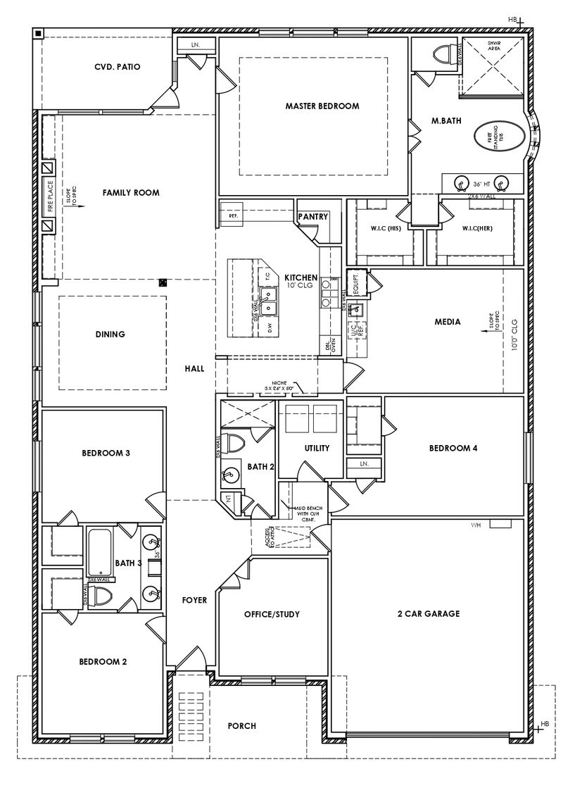
Floor Plans
Exterior Elevations
Contemporary Elevation
Sleek, minimalist with flat or low-sloped roofs, large glass areas, and asymmetrical forms. Clean lines and modern materials define the aesthetic.
Modern Elevation
Geometric massing, bold material contrast (stucco, metal, glass, and wood), expansive windows, and minimalist trim. Often features flat or shed roofs and horizontal lines for a cutting-edge appearance
Transitional Elevation
Harmonizes traditional form with modern features—neutral palettes, balanced proportions, and mixed exterior materials. Designed for broad market appeal.
Traditional Elevation
Timeless and elegant, featuring brick or stone facades, gable roofs, symmetrical window layouts, and classic architectural details.
Site Map
Navigate the Valencia Contemporary Series with ease. Quickly locate your preferred home and lot, visualize the neighborhood layout, and plan your next steps toward owning a beautiful Sixth Element Home.

Affordability
At Valencia – each home is thoughtfully crafted to balance quality and affordability, giving you modern features and smart layouts at a price that fits your budget. With clear pricing and flexible financing options, it’s easy to plan your next steps and choose a home that brings lasting value and comfort to your lifestyle.
Lot Availability
Choose from a variety of thoughtfully designed lots that complement each home style. Whether you prefer a spacious backyard, a quiet corner, or a premium location within the community, our site map makes it simple to identify the ideal lot for your future home.
Resident Benefits
Living at Valencia offers more than a beautiful home. Residents enjoy well-maintained community spaces, scenic outdoor areas, and a welcoming neighborhood atmosphere. Every detail—from energy-efficient features to high-quality finishes—ensures comfort, convenience, and lasting value.
Contact details
Contact Information

Sandi Tijerina
sandi.tijerina@cbrealty.com
214-566-4809
